アルビレオ

12万円

管理/共益費 12,000円

岡山県倉敷市日吉町

山陽本線「倉敷」駅徒歩10分

水島臨海鉄道「浦田」駅バス15分下電バス「倉敷駅前」停歩12分

水島臨海鉄道「球場前」駅徒歩27分

価格
12万円 管理/共益費 12,000円
間取り/面積
2LDK/61.00㎡
所在地
岡山県倉敷市日吉町
築年
2025年2月(築1年)
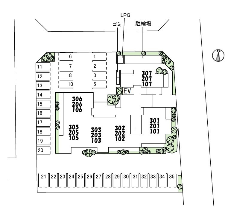
駐車
空有
交通

山陽本線倉敷」駅 徒歩10分

水島臨海鉄道浦田」駅 バス15分 下電バス「倉敷駅前」 停歩12分

水島臨海鉄道球場前」駅 徒歩27分

アルビレオの基本情報

物件名
アルビレオ
価格
12万円
管理/共益費
12,000円
築年月
2025年2月(築1年)
総戸数
17戸
所在地
岡山県倉敷市日吉町
交通

山陽本線倉敷」駅 徒歩10分

水島臨海鉄道浦田」駅 バス15分 下電バス「倉敷駅前」 停歩12分

水島臨海鉄道球場前」駅 徒歩27分

アルビレオの詳細情報

設備条件
  • エレベーター
  • 駐輪場
  • 敷地内ごみ置き場
  • 駐車2台可
  • インターネット対応
  • オートロック
  • 宅配ボックス
  • 防犯カメラ
設備(その他)
    -
駐車場/月額
空有/0円
用途地域
-
募集戸数 / 総戸数
- / 17戸
取引態様
一般媒介

アルビレオで募集中の物件

  1. 102

    18.45坪 (61.00㎡)

    12万円(6504.07円/坪)

周辺施設

  • デイリーヤマザキ倉敷川入店の画像

    コンビニエンスストア

    デイリーヤマザキ倉敷川入店

    357m(5分)

  • 倉敷みらい公園の画像

    公園

    倉敷みらい公園

    545m(7分)

  • 三井アウトレットパーク倉敷の画像

    アウトレット

    三井アウトレットパーク倉敷

    567m(8分)

  • ファミリーマート 倉敷大内店の画像

    コンビニエンスストア

    ファミリーマート 倉敷大内店

    636m(8分)

  • アリオ倉敷の画像

    スーパー

    アリオ倉敷

    685m(9分)

  • 薬局スーパードラッグひまわりグラン倉敷の画像

    ドラッグストア

    薬局スーパードラッグひまわりグラン倉敷

    700m(9分)

  • コメダ珈琲店 倉敷北店の画像

    喫茶店・カフェ

    コメダ珈琲店 倉敷北店

    720m(9分)

  • 西中学校の画像

    中学校

    西中学校

    837m(11分)

  • 倉敷寿町郵便局の画像

    郵便局

    倉敷寿町郵便局

    886m(12分)

  • 中国銀行倉敷八王寺支店の画像

    銀行

    中国銀行倉敷八王寺支店

    948m(12分)

  • 天満屋倉敷店の画像

    デパート

    天満屋倉敷店

    952m(12分)

  • マクドナルド倉敷宮前店の画像

    ファーストフード

    マクドナルド倉敷宮前店

    1020m(13分)

  • ホームセンターコーナン倉敷北浜店の画像

    ホームセンター

    ホームセンターコーナン倉敷北浜店

    1041m(14分)

  • 倉敷北病院の画像

    総合病院

    倉敷北病院

    1232m(16分)

  • ハート酒津店の画像

    スーパー

    ハート酒津店

    1394m(18分)

  • 老松小学校の画像

    小学校

    老松小学校

    1397m(18分)

  • 老松保育園の画像

    保育園

    老松保育園

    1480m(19分)

  • ケーズデンキ 倉敷店の画像

    家電製品

    ケーズデンキ 倉敷店

    1610m(21分)

  • イオンモール倉敷の画像

    ショッピングセンター

    イオンモール倉敷

    1926m(25分)

  • 倉敷中央病院の画像

    総合病院

    倉敷中央病院

    1991m(25分)

近隣の物件

  1. 倉敷市日吉町

    1LDK (45.86㎡)

    8万円

  2. 倉敷市大内

    2LDK (69.42㎡)

    10.2万円

  3. 倉敷市青江

    1K (30.95㎡)

    4.05万円

  4. 倉敷市日ノ出町1丁目

    1LDK (35.60㎡)

    7.9万円

よく見られている物件

  1. 倉敷市酒津

    2DK (48.91㎡)

    5.35万円

  2. 倉敷市福島

    3LDK (62.68㎡)

    5.7万円

  3. 倉敷市大島

    2DK (49.69㎡)

    7.3万円

  4. 倉敷市大内

    1LDK (50.05㎡)

    7.1万円

アルビレオ

お気軽にお問い合わせください

LINEからお問い合わせ 無料お問い合わせ

ホームメイトFC倉敷東店

086-422-0088

10:00~18:30

(休:毎週火曜日水曜日 夏季・冬季・GW)